Zarate

Historia y paisaje

Witcel es una fábrica de papeles especiales fundada en 1961 de un Joint Venture entre Celulosa Argentina y Wiggins Teape del Reino Unido y se encuentra en uno de los lugares de mayor
potencial paisajístico de la ciudad. Es el único sector del tejido urbano que llega al río, definido por las barreras naturales de la barranca y el río Paraná de las Palmas. A su vez concentra los edificios histórico-arquitectónicos más importantes de la ciudad y de la identidad de la sociedad zarateña. Son el testimonio de una época de gran actividad económico-productiva, relacionada
con la inmigración y la industria. Todo ello le otorga un carácter y riqueza únicos al área.

Objetivos

Se busca conformar un frente urbano sobre el parque costero, caracterizando la ciudad de Zárate y reconfigurando su perfil.
Definir los espacios públicos del interior del tejido, comprendidos por las vías de circulación, espacios verdes y equipamiento público.
Delimitar las operaciones públicas y privadas, permitiendo que cada actor desarrolle sus infraestructuras y construcciones de manera independiente.
Desarrollar un espacio urbano y una configuración volumétrica que promueva la mezcla de usos entre comercios, servicios, viviendas y estacionamientos.
Preservar el carácter del área mediante un desarrollo específico de las plantas bajas. Tomando del entorno actual referencias de carácter y materialidad.
Transformar la zona en un área de prioridad peatonal, limitando el flujo de automóviles hacia el parque costero.

Zarate

Proyecto
Zarate
Programa
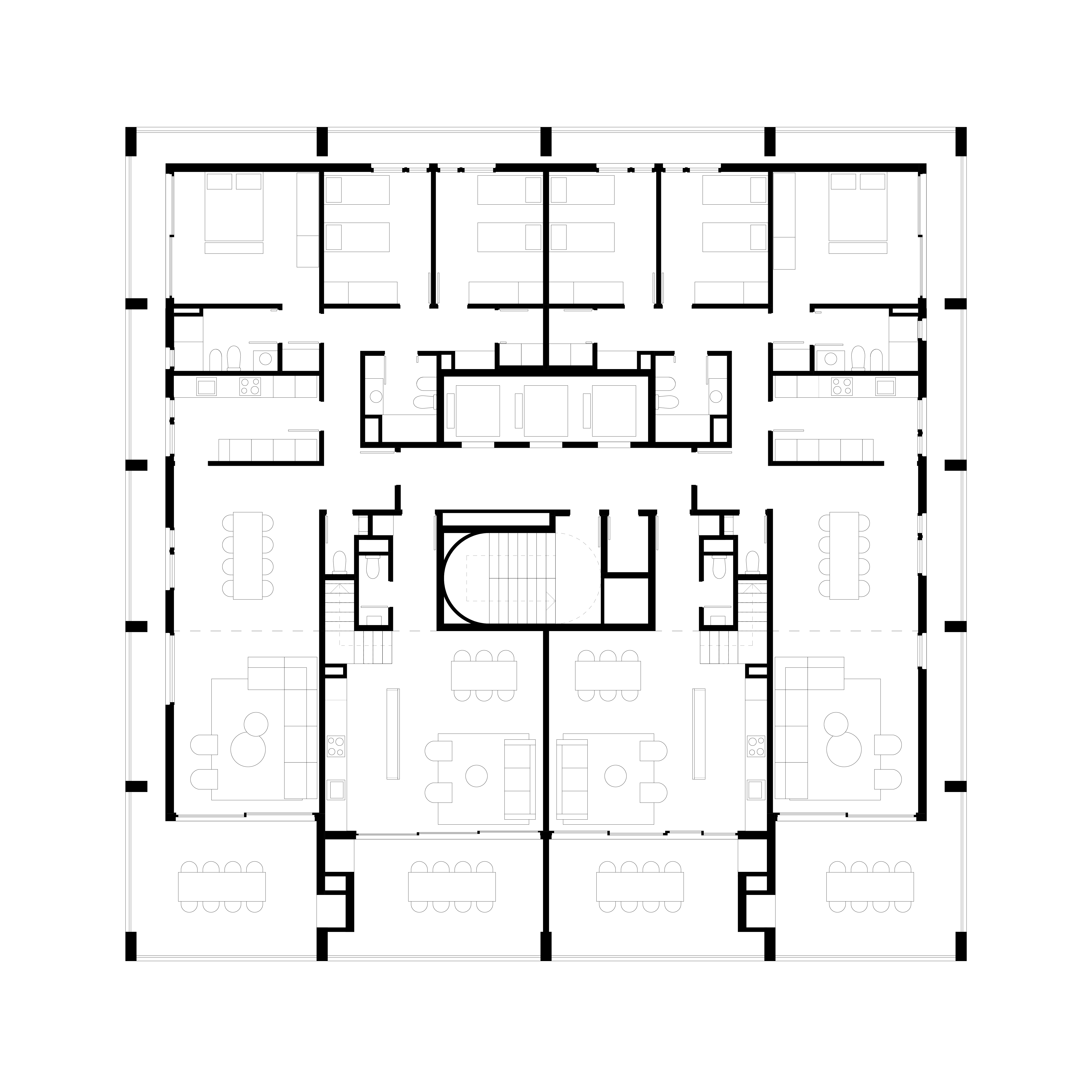
Masterplan de viviendas, servicios, comercios y estacionamientos
estado
Sin construir
lugar
Argentina, Zarate, Provincia de Buenos Aires
año
2017 - 2018
Cliente
Witcel S.A
Superficie
5400 m2
Autores
RDR arquitectos
Colaboradores
Ignacio Dahl Rocha, Bruno Emmer, Sofía Vivacqua, Bruno Goroni, Maria Santarelli, Vanik Margossian
Empresa
constructora
Di Bello
Ingeniería
estructural
METRA
Geotécnica
AOSA
Ingeniero
HVAC
Frisia
Ingeniero
sanitario
LAH
Ingeniero
electrónico
Aselec
Crédito
foto
Magma 3D

Zarate

Proyecto
Zarate
Programa
Masterplan de viviendas, servicios, comercios y estacionamientos
estado
Sin construir
lugar
Argentina, Zarate, Provincia de Buenos Aires
año
2017 - 2018
Cliente
Witcel S.A
Superficie
5400 m2
Autores
RDR arquitectos
Colaboradores
Ignacio Dahl Rocha, Bruno Emmer, Sofía Vivacqua, Bruno Goroni, Maria Santarelli, Vanik Margossian
Empresa
constructora
Di Bello
Ingeniería
estructural
METRA
Geotécnica
AOSA
Ingeniero
HVAC
Frisia
Ingeniero
sanitario
LAH
Ingeniero
electrónico
Aselec
Crédito
foto
Magma 3D
Zarate

Zarate

2017 - 2018 · Argentina, Zarate, Provincia de Buenos Aires · Vivienda » Colectiva

El Masterplan se inscribe dentro de un Plan integral de desarrollo y readecuación de la Ribera de Zárate que abarca los terrenos del ex frigorífico Smithfield, Witcel, Celulosa y los terrenos de la Marina Argentina, cuyo objetivo es albergar 130,000 nuevos habitantes a la ciudad.
El proyecto busca la revalorización del sector costanero, permitiendo el uso de actividades comerciales, residenciales, hoteleras, de servicios y administrativas.
Mediante el convenio urbanístico se permitió la subdivisión de la parcela original en 8 parcelas con una capacidad constructible de 85,800 m2. Se cedieron 6,600 m2 de espacios verdes y 7,500 m2 de áreas de reserva para actividades complementarias. Se permitió la apertura de calles transversales y longitudinales, las que permitirán la integración del predio a la traza urbana y generarán una mayor permeabilidad de la ciudad hacia el río.
El resultado final del Plan integral será un nuevo sector de Zárate vinculado directamente al río, accesible desde la ruta Panamericana, hilvanado por espacios públicos y parques abiertos a toda la comunidad.
+ leer más
Proyecto
Zarate
estado
Sin construir
lugar
Argentina, Zarate, Provincia de Buenos Aires
año
2017 - 2018
Cliente
Witcel S.A
Superficie
5400 m2
+ ver créditos