Plaza Houssay

Ubicada en una de las áreas céntricas más compactas y densamente pobladas de Buenos Aires, con más de 650 habitantes por hectárea, la Plaza “Dr. Bernardo A. Houssay” fue creada en 1975 en los terrenos del antiguo Hospital Buenos Aires a partir de un proyecto de un equipo multidisciplinar que incluyó a los paisajistas Pradial Gutiérrez, Aldo Mario Liberatori y Román Wellington Peñalba.
Rodeada por las Facultades de Farmacia y Bioquímica, Odontología, Ciencias Sociales, Ciencias Económicas y Medicina de la Universidad de Buenos Aires que alojan, junto al Hospital-Escuela de Clínicas José de San Martín aledaño, aproximadamente 100.000 estudiantes, la plaza fue progresivamente desfigurada por acciones parciales y descoordinadas que fragmentaron su condición espacial y ambiental, volviéndola incómoda y peligrosa.

Frente a esta situación, el Gobierno de la Ciudad de Buenos Aires realiza un llamado a concurso en 2017 para la nueva concesión del estacionamiento subterráneo de la plaza, solicitando que las propuestas sean acompañadas de proyectos estratégicos para reconvertir parte del estacionamiento en servicios públicos y culturales que complementen un rediseño de la plaza.

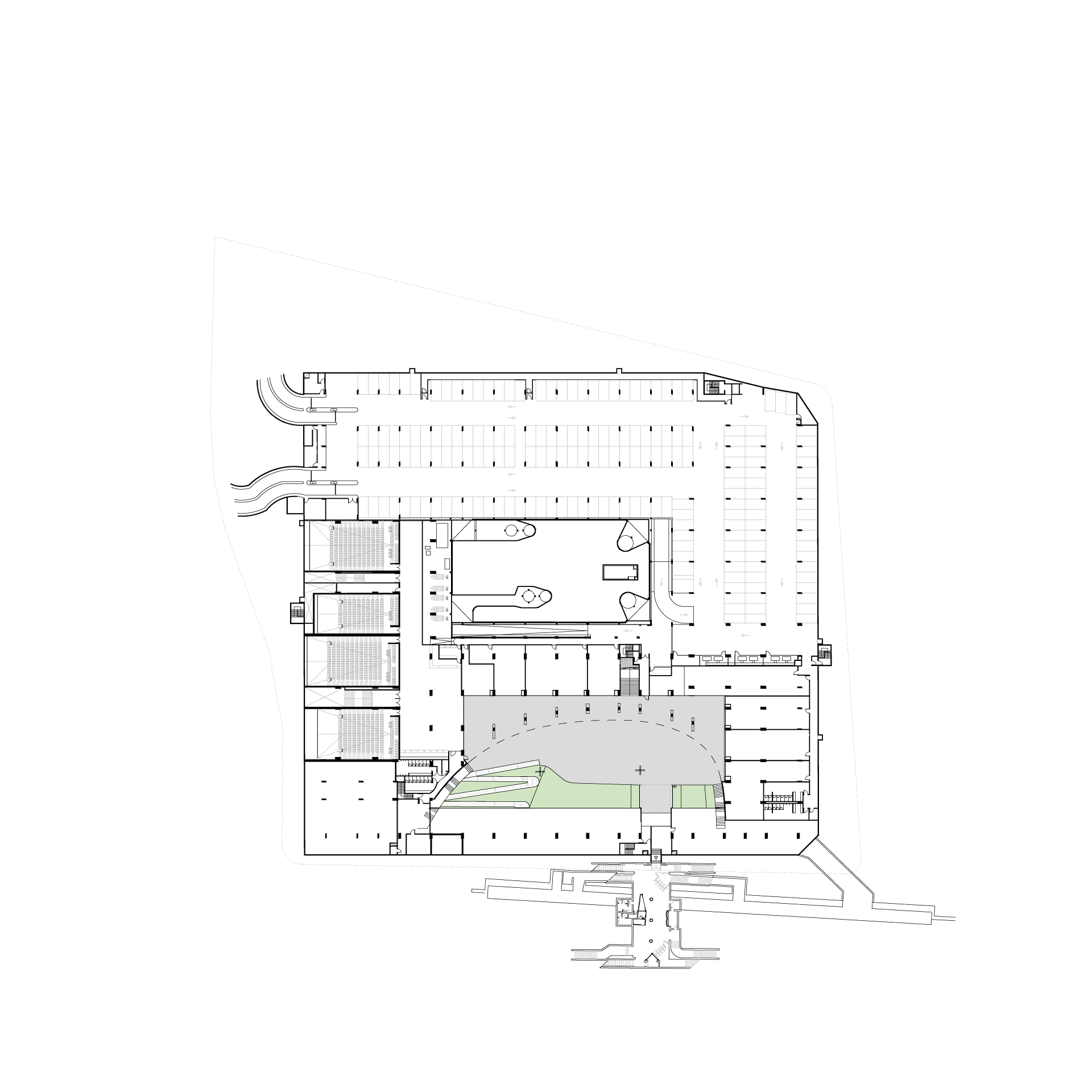
El proyecto ganador de RDR arquitectos se resume en cuatro estrategias principales:

1. Anillo perimetral verde: Agrupar y caracterizar las áreas verdes.
Ordenado en grandes pétalos verdes sin bordes abruptos, este anillo se presenta como un gran parque urbano, con áreas verdes y zonas de esparcimiento integradas (canchas deportivas, estaciones saludables y mobiliario urbano). También oficia como búfer para crear un ambiente contenido en la zona central.

2. Espacio seguro: Atraer al transeúnte e iluminar la plaza.
El nuevo trazado de los caminos peatonales, diseñados a partir de los accesos de las facultades vecinas, asegura que el recorrido diagonal de la plaza sea el más cómodo y directo posible. Esta condición fomenta que los transeúntes la utilicen en sus recorridos. La nueva iluminación enmarca estos recorridos y convierte al centro y a la iglesia en un lugar activo y luminoso.

3. Área central seca: Revalorizar la Iglesia San Lucas y construir un nuevo centro.
La propuesta incorpora la iglesia a la nueva área central seca de 50 x 50 m. Gracias a las tipas y los jacarandás preexistentes, este espacio es un lugar ideal para diversas actividades a la sombra, creando un centro activo y dinámico.

4. Espacio cultural y de servicios: Crear un área de usos mixtos totalmente integrada a la plaza.
Propuesto como un gran zócalo de la iglesia, este espacio de usos mixtos se ubica por debajo de la plaza seca frente a la Avenida Córdoba. Un gajo se inclina levemente hacia el centro de la manzana, creando un anfiteatro natural que guía y conecta al perímetro con los nuevos usos culturales y de servicios, junto a las conexiones con el subte y el estacionamiento. Gracias a sus nuevas y diferentes actividades, este sector permite extender el uso horario de la plaza.
De esta manera, el proyecto promueve nuevos vínculos entre la plaza, el transporte y las instituciones circundantes a partir de la reformulación de la relación entre la superficie urbana y las cotas inferiores.

Esta propuesta se enmarca en una investigación sobre los posibles modos de intervenir el espacio público de manera sostenible, pudiendo recuperar y poner en valor las preexistencias paisajísticas junto a un aumento considerable de las áreas verdes. Al mismo tiempo, se proponen nuevas funciones para este verde urbano: construcción de microclimas, retención de partículas atmosféricas contaminantes, preservación del hábitat y de la biodiversidad existente, y la absorción y ralentización del agua de lluvia, lo que incrementa la estabilidad térmica de la plaza.

En términos paisajísticos, el proyecto propone un parque de bajo a mediano mantenimiento con vegetación de probada resistencia al uso urbano y a la situación climática existente. La vegetación existente se mantiene y se incorpora al proyecto de paisaje, realizando sobre los árboles sólo las tareas de tratamiento fitosanitario o poda de limpieza necesarias. También se incorpora vegetación nativa o exótica naturalizada (esta última en cantidad menor al 10%) de requerimiento hídrico bajo o medio. Al desarrollarse todo el paisajismo sobre las losas que albergan los estacionamientos subterráneos, se proponen árboles de segunda o tercera magnitud, aptos para desarrollarse en dicha condición, de crecimiento rápido o mediano, de follaje y floración variada, que garantizan fuertes contrastes de color entre canteros durante todo el año, privilegiando el uso de grandes masas de una misma especie.

Plaza Houssay

Proyecto
Plaza Houssay
estado
Construido
lugar
Argentina, Ciudad de Buenos Aires
año
2018 - 2019
Cliente
Private Client
Superficie
47000 m2
Autores
RDR arquitectos
Premios
III Bienal Internacional de Arquitectura Argentina. Paisaje y ciudad: Distinguida. Plaza Houssay, Buenos Aires
XVII Bienal Internacional de Arquitectura de Buenos Aires. Premio Paisaje-Arquitectura: Plaza Houssay, Buenos Aires
Colaboradores
Bruno Emmer, Ignacio Dahl Rocha, Facundo Morando, Rodrigo Muro de Nadal, Martina de Barba, Sofía Vivacqua, Clara Carrera, Federico Bonessi, Lucía Iglesias, Nicolás Adrien, María Santarelli, Tomás Pérez Amenta, Juan Benitez, Facundo Burgos, Matías Brun.
Empresa
constructora
Bricons
Ingeniería
estructural
Sebastián Berdichevsky
Ingeniero
HVAC
Julio Blasco Diez
Ingeniero
sanitario
Jorge Labonia
Ingeniero
electrónico
Marcelo Alignani
Consultor
de
iluminación
Verónica Gilotaux
Arquitecto
paisajista
Grupo Landscape - Cora Burgin, Sebastián Mouzo
Crédito
foto
Javier Agustín Rojas
Plaza Houssay

Plaza Houssay

2018 - 2019 · Argentina, Ciudad de Buenos Aires · Público » Deportes y Recreación

Ubicada en una de las áreas céntricas más compactas y densamente pobladas de Buenos Aires, con más de 650 habitantes por hectárea, la Plaza “Dr. Bernardo A. Houssay” fue creada en 1975 en los terrenos del antiguo Hospital Buenos Aires a partir de un proyecto de un equipo multidisciplinar que incluyó a los paisajistas Pradial Gutiérrez, Aldo Mario Liberatori y Román Wellington Peñalba.
Rodeada por las Facultades de Farmacia y Bioquímica, Odontología, Ciencias Sociales, Ciencias Económicas y Medicina de la Universidad de Buenos Aires que alojan, junto al Hospital-Escuela de Clínicas José de San Martín aledaño, aproximadamente 100.000 estudiantes, la plaza fue progresivamente desfigurada por acciones parciales y descoordinadas que fragmentaron su condición espacial y ambiental, volviéndola incómoda y peligrosa.
+ leer más
Proyecto
Plaza Houssay
estado
Construido
lugar
Argentina, Ciudad de Buenos Aires
año
2018 - 2019
Cliente
Private Client
Superficie
47000 m2
+ ver créditos