Casa José Ignacio

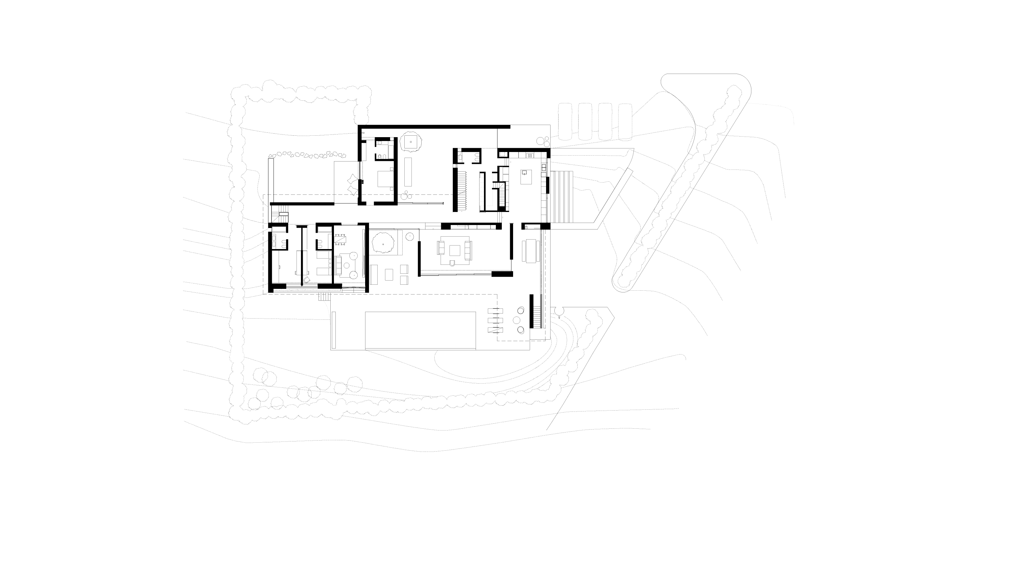
Esta vivienda familiar de vacaciones, con uso continuo en verano y puntual en invierno, se ubica junto al mar en un solar privilegiado sobre la playa mansa de José Ignacio. El sitio presenta una pendiente moderada hacia el mar y las vistas principales en dirección oeste hacia la puesta del sol. Por uno de sus laterales, hacia el sur, se encuentra una de las calles de acceso a la playa muy transitada en verano. El programa se desarrolla casi totalmente en una sola planta que se va escalonando levemente siguiendo la pendiente natural del terreno. La casa está formada por una serie de pabellones de muros de piedra, separados por patios y cubiertos por una gran losa vegetada. Este techo jardín es un potente gesto horizontal que relaciona la casa con el atardecer del horizonte marino. Ambos elementos definen el área social de la casa como una secuencia de espacios exteriores, interiores y semi-cubiertos que se relacionan entre sí creando diversas condiciones de uso adaptadas a las variables climáticas del lugar. Los grandes ventanales corredizos permiten vivir la casa en verano como un gran espacio de sombra exterior. La casa se consolida en el alzado sur, ubicando allí las funciones de servicio, buscando protegerse del viento y de la calle de acceso público a la playa. La torre en la esquina define su discreta presencia en el paisaje del pueblo de José Ignacio.

Casa José Ignacio

Proyecto
Casa José Ignacio
estado
Construido
lugar
Uruguay, José Ignacio
año
2008 - 2009
Cliente
Private Client
Superficie
900 m2
Autores
RDR arquitectos
Colaboradores
Ignacio Dahl Rocha, Bruno Emmer, Susana Barra, Nicolas Adrien, Ovidio Lago
Crédito
foto
Cristobal Palma
Casa José Ignacio

Casa José Ignacio

2008 - 2009 · Uruguay, José Ignacio · Vivienda » Individual

Esta vivienda familiar de vacaciones, con uso continuo en verano y puntual en invierno, se ubica junto al mar en un solar privilegiado sobre la playa mansa de José Ignacio.
+ leer más
Proyecto
Casa José Ignacio
estado
Construido
lugar
Uruguay, José Ignacio
año
2008 - 2009
Cliente
Private Client
Superficie
900 m2
+ ver créditos