Quartier des Cèdres

Localisation et accessibilité: En février 2014, le plan de quartier « Les Cèdres » entrait en vigueur, suite à la confirmation de la population chavannoise, lors du référendum du 9 février 2014. De forme trapézoïdale le PQ « Les Cèdres » se situe sur la limite Ouest de la Commune de Chavannes-près-Renens, voisine du territoire communal d'Ecublens.

Objectifs: Le projet prend en compte le plan de quartier, lequel se structure autour d'un réseau d'espaces publics. La morphologie urbaine proposée par le plan se compose d'immeubles de six niveaux en moyenne et d'une tour, prévue à l'Ouest du site, à proximité de l'avenue du Tir-Fédéral, pouvant atteindre 140 m. Une proportion importante du terrain est réservée aux aménagements extérieurs paysagers.


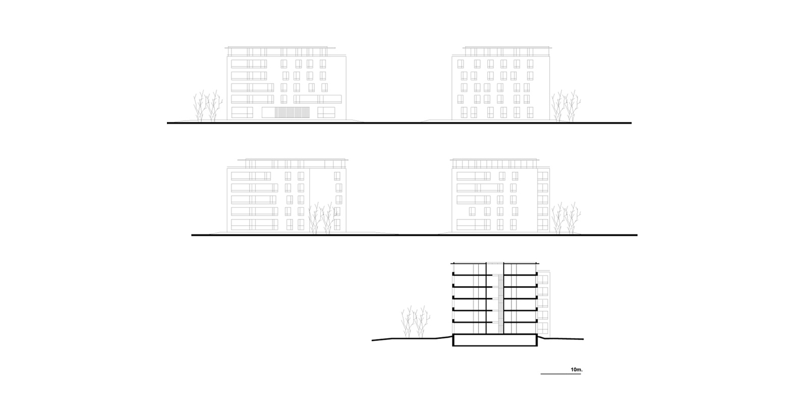
Phase 1 (bâtiments A, B, C, D, E, F, G, H, I, J, K; parkings Z1 et extension Z2): La première phase de développement du quartier - Phase 1 - comporte environ 50'000 m2 de SPd, soit environ 45% du potentiel total. Elle intègre la construction d’une passerelle piétonne, un axe de mobilité douce avec la place et l'accès au quartier depuis le réseau routier côté av. de la Gare. La Phase 1 est composé de 11 bâtiments et d’un parking commun enterré. Chaque bâtiment a essentiellement la même organisation en coupe : un rez vitré affecté aux activités (commerces de proximité ou services) et aux accès aux noyaux de circulation des logements situés aux étages, puis des attiques pour réduire la perception en hauteur et donner fin au bâtiment. Aux sous-sols se trouvent les caves, dont une partie sera affectée comme abris PC, et les locaux techniques nécessaires pour assumer le confort des différentes affectations avec leur complément en toiture. La matérialisation des façades se réparti en deux natures distinctes : des éléments continus entre les fenêtres, réalisés en béton armé forment le parapet filant devant les balcons; une façade secondaire métallique, dans laquelle s’inscrivent les fenêtres et les volets coulissants, donne la richesse de l’aléatoire à la composition rigoureuse. Les bâtiments E, F, I, J, K sont uniquement affectés au logement en PPE. Ils ne disposent pas de surfaces commerciales au rez. Leur façade est composée d’une expression de murs troués avec fenêtre, avec un travail particulier du socle pour poser le bâtiment au sol et créer les accès, et en dernier étage, pour réduire son gabarit et créer des terrasses.

Quartier des Cèdres

Proyecto
Quartier des Cèdres
Programa
Barrio residencial
estado
Construido
lugar
Suisse, Chavannes-près-Renens
año
2010 - 2019
Cliente
Orllati Real Estate SA
Superficie
20400 m2
Autores
RDR Architectes / RDR arquitectos
certificaciones
Minergie
Colaboradores
Jacques Richter, Ignacio Dahl Rocha, Christian Leibbrandt, Bruno Emmer, Santiago Pagés, Bernard Emonet, Antoine Barc, Christian Gonin, Pouska Haessig, Pierre Jacquier, Miroslav Jandescek, Alain Jaquenod, Martin Mouzo, Barbara Moyano Gacitúa, Hector Nunez, Michel Paganin, Fabrice Roulin, Nathalie Saegesser, Philippe Schmittler, Manuela Toscan, Philippe Vauthey
Ingeniería
estructural
Urner & Associés SA
Ingeniero
electrónico
Tecnoconsult SA
Diseño
interior
RDR design SA
Arquitecto
paisajista
Jean-Jacques Borgeaud
Otros
especialistas
Géomètre: Bureau d'Etudes Belotti Daniel
Quartier des Cèdres

Quartier des Cèdres

2010 - 2019 · Suisse, Chavannes-près-Renens · Vivienda » Colectiva

Localisation et accessibilité: En février 2014, le plan de quartier « Les Cèdres » entrait en vigueur, suite à la confirmation de la population chavannoise, lors du référendum du 9 février 2014. De forme trapézoïdale le PQ « Les Cèdres » se situe sur la limite Ouest de la Commune de Chavannes-près-Renens, voisine du territoire communal d'Ecublens.

Objectifs: Le projet prend en compte le plan de quartier, lequel se structure autour d'un réseau d'espaces publics. La morphologie urbaine proposée par le plan se compose d'immeubles de six niveaux en moyenne et d'une tour, prévue à l'Ouest du site, à proximité de l'avenue du Tir-Fédéral, pouvant atteindre 140 m. Une proportion importante du terrain est réservée aux aménagements extérieurs paysagers.
+ leer más
Proyecto
Quartier des Cèdres
estado
Construido
lugar
Suisse, Chavannes-près-Renens
año
2010 - 2019
Cliente
Orllati Real Estate SA
Superficie
20400 m2
+ ver créditos