EPFL Quartier de l'Innovation

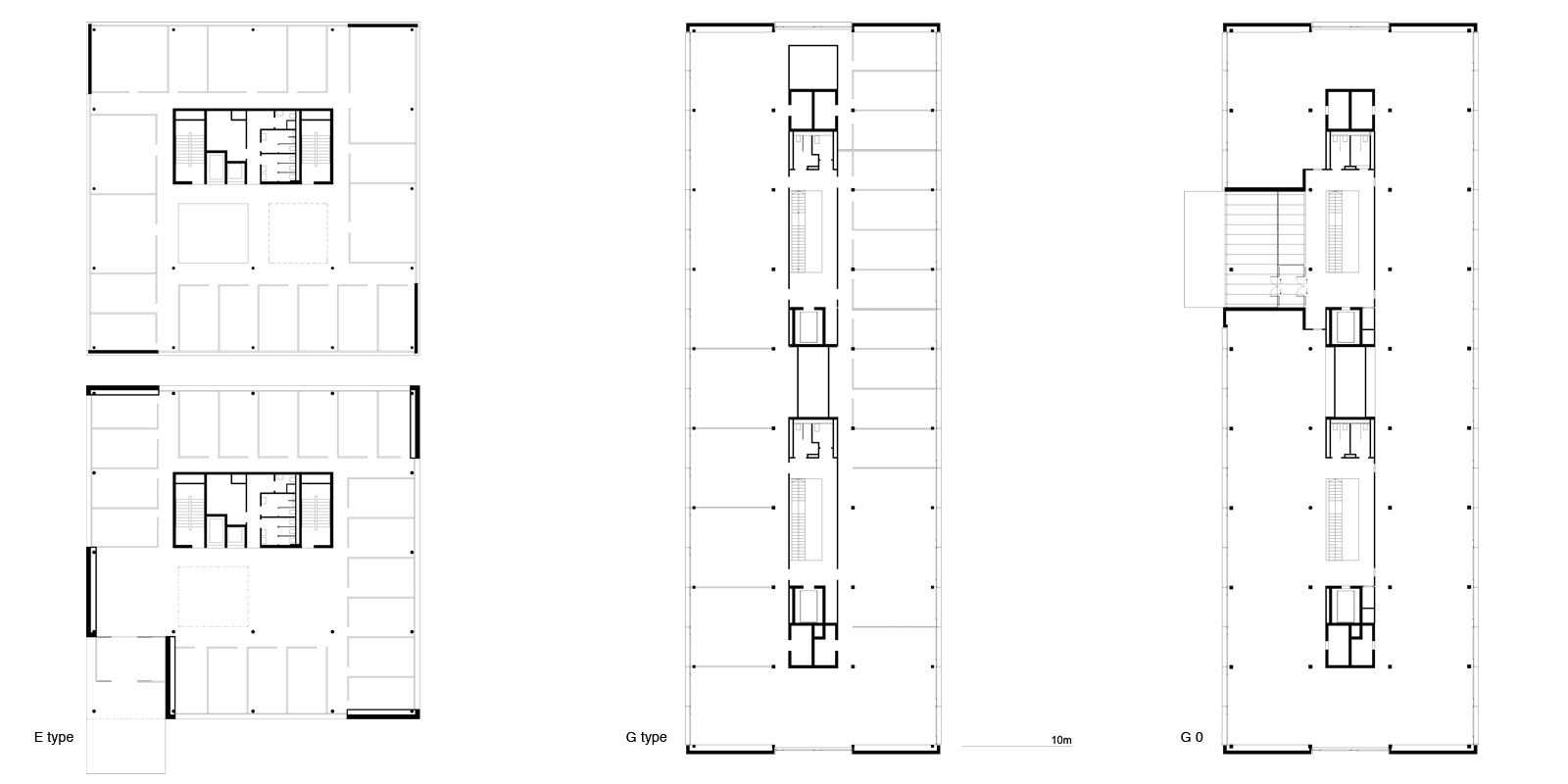
El “Quartier de l’innovation” alberga oficinas y laboratorios destinados a empresas que trabajan en relación con la EPFL. Contrariamente al esquema de las primeras etapas de desarrollo del Campus, que se estructuraban a lo largo de una circulación peatonal sobreelevada, las nuevas intervenciones en la parte sur del campus de la Escuela Politécnica Federal de Lausanne, de las cuales este complejo forma parte, proponen recuperar el terreno natural parquizado como espacio público de circulación y escenario de vida estudiantil. A pesar de su relativamente alta densidad, este proyecto refuerza esa idea distribuyendo los diferentes edificios sobre un parque de manera a controlar la escala, la calidad espacial y el carácter de los espacios públicos entre ellos.


El carácter de los edificios busca transmitir la atmosfera apropiada de un lugar dedicado a la investigación tecnológica en un ambiente convivial y a escala humana. A ello colabora la utilización del vidrio esmaltado de color blanco, liso o con un motivo grafico en la cara interior de las superficies opacas. Este fondo blanco destaca los matices de verde propios del vidrio común creando, junto con el parque diseñado por el Atelier du Paysage, una atmósfera cromática particular.  


Dos de los ocho edificios que conforman este complejo están destinados a laboratorios; delimitan el complejo hacia el oeste y se distinguen del resto por sus fachadas que combinan el hormigón visto con detalles de aluminio anodizado natural en las aberturas y los áticos técnicos.


 

EPFL Quartier de l'Innovation

Proyecto
EPFL Quartier de l'Innovation
Programa

8 edificios de investigación y de laboratorios

estado
Construido
lugar
Suisse, Ecublens
año
2006 - 2011
Cliente
Fonds immobilier UBS Sima, Fondation du Parc Scientifique PSE
Superficie
46812 m2
Autores
RDR architectes
Colaboradores
Jacques Richter, Ignacio Dahl Rocha, Christian Leibbrandt, Bruno Emmer, Philippe Marmillod, Yves-Olivier Joseph, Nathanaël Pons, Fabrice Roulin, Lionel Peter, Pouska Haessig, Martin Mouzo, Jérémy Schaffner, Edurne Pradeira, Antoine Barc, Valentina Cambiasio, Manuela Toscan-Essyad, Gilles Margot, Adrien Barakat, Eleonora Modolo, Marco Turin, Bárbara Moyano Gacitúa.
Ingeniería
estructural
Ingeni SA
Geotécnica
Karakas & Français SA
Ingeniero
HVAC
Pierre Chuard Ingénieurs Conseils SA
Ingeniero
sanitario
H. Schumacher ingénieurs conseils SA
Ingeniero
electrónico
Consortium Betelec - Perrottet SA
Ingeniero
de
seguridad
Hautle Anderegg + Partner AG
Consultor
de
fachada
BCS SA
Consultor
acústico
Gartenmann Engineering SA
Diseño
interior
RDR design
Arquitecto
paisajista
L'Atelier du paysage Jean-Yves Le Baron Sàrl
Otros
especialistas
Géomètre: Renaud et Burnand SA
Artista
Daniel Schlaepfer
Crédito
foto
Yves André
EPFL Quartier de l'Innovation

EPFL Quartier de l'Innovation

2006 - 2011 · Suisse, Ecublens · Público » Educación

El “Quartier de l’innovation” alberga oficinas y laboratorios destinados a empresas que trabajan en relación con la EPFL. Contrariamente al esquema de las primeras etapas de desarrollo del Campus, que se estructuraban a lo largo de una circulación peatonal sobreelevada, las nuevas intervenciones en la parte sur del campus de la Escuela Politécnica Federal de Lausanne, de las cuales este complejo forma parte, proponen recuperar el terreno natural parquizado como espacio público de circulación y escenario de vida estudiantil. A pesar de su relativamente alta densidad, este proyecto refuerza esa idea distribuyendo los diferentes edificios sobre un parque de manera a controlar la escala, la calidad espacial y el carácter de los espacios públicos entre ellos.

+ leer más
Proyecto
EPFL Quartier de l'Innovation
estado
Construido
lugar
Suisse, Ecublens
año
2006 - 2011
Cliente
Fonds immobilier UBS Sima, Fondation du Parc Scientifique PSE
Superficie
46812 m2
+ ver créditos