Villa Alangari

Villa Alangari

Proyecto
Villa Alangari
Programa

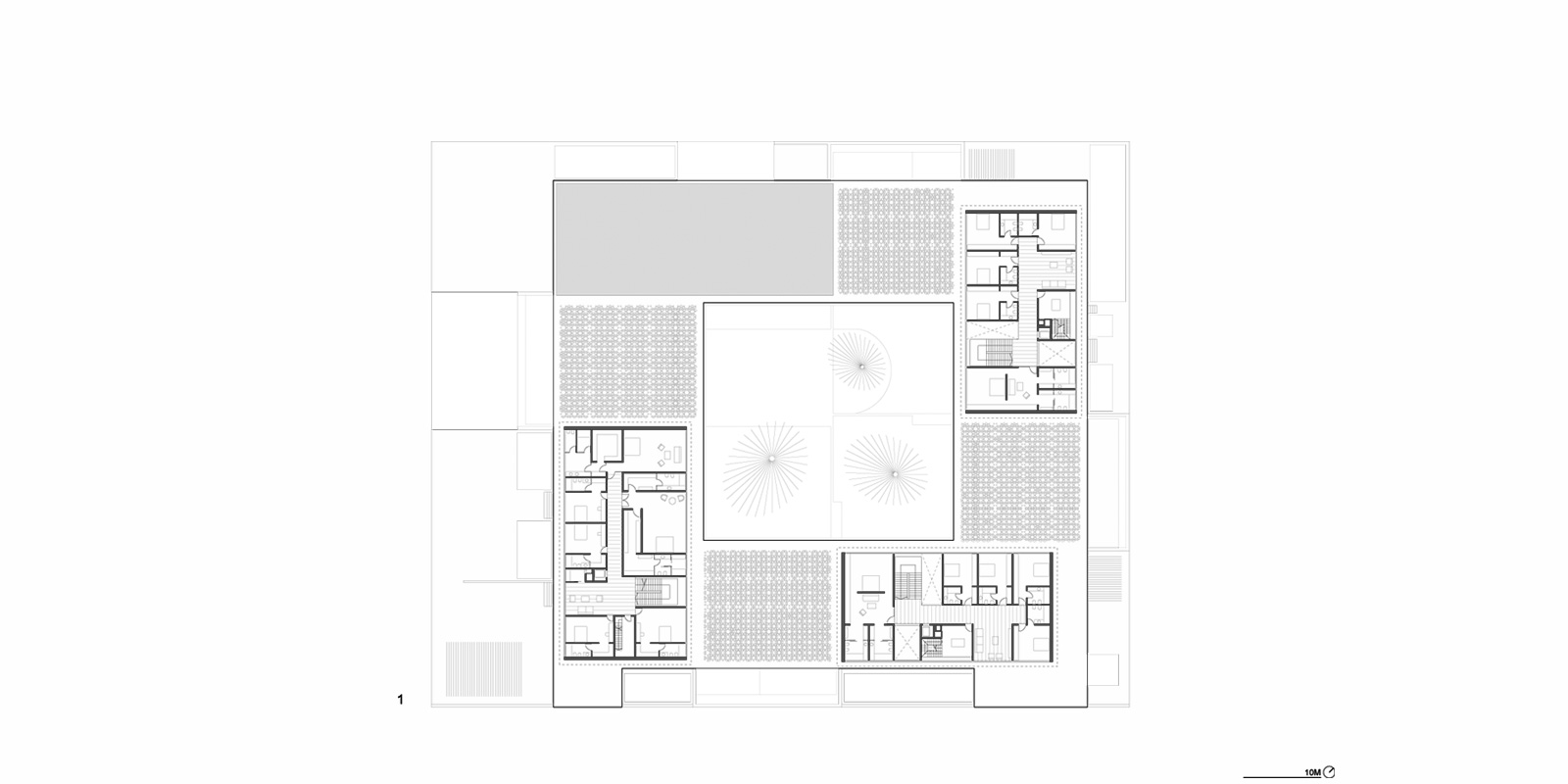
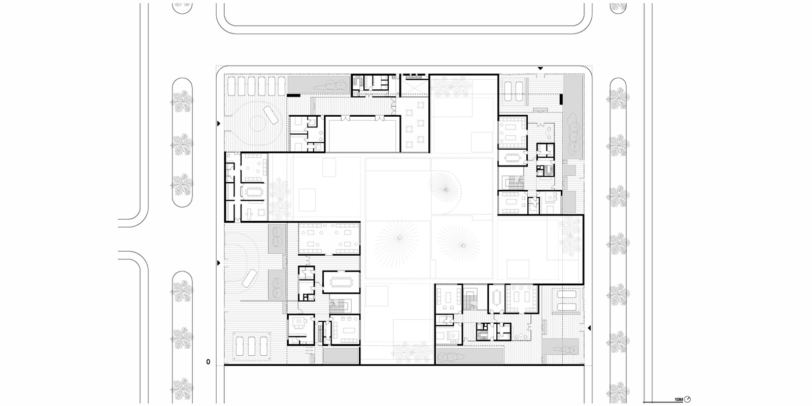
Complejo residencial. Cuatro edificios y un parque central común

estado
Sin construir
lugar
Arabia Saudita, Riyadh
año
2013 - 2013
Cliente
Private Client
Autores
RDR Architectes
Colaboradores
Ignacio Dahl Rocha, Santiago Pagés, Bruno Emmer
Villa Alangari

Villa Alangari

2013 - 2013 · Arabia Saudita, Riyadh · Vivienda » Individual

Proyecto
Villa Alangari
estado
Sin construir
lugar
Arabia Saudita, Riyadh
año
2013 - 2013
Cliente
Private Client
+ ver créditos