Universidad Torcuato Di Tella

Renovation and transformation of an existing building into teaching and administrative facilities.

Until 2009 the Universidad Torcuato Di Tella was developing its activities in two separate buildings. With the aim of regrouping the students, teachers, and administrative staff in a single location on the Alcorta campus. The master plan carried out by RDR arquitectos proposed the development of works in stages. The first with the phased renovation and extension of the building on Av. Alcorta and then a second building on calle Sáenz Valiente completed the building capacity of the site.

The first intervention sought to highlight the special existing structure through its volumetric and chromatic articulation with the new elements, allowing for a clear reading of the relationship between the new and the existing.

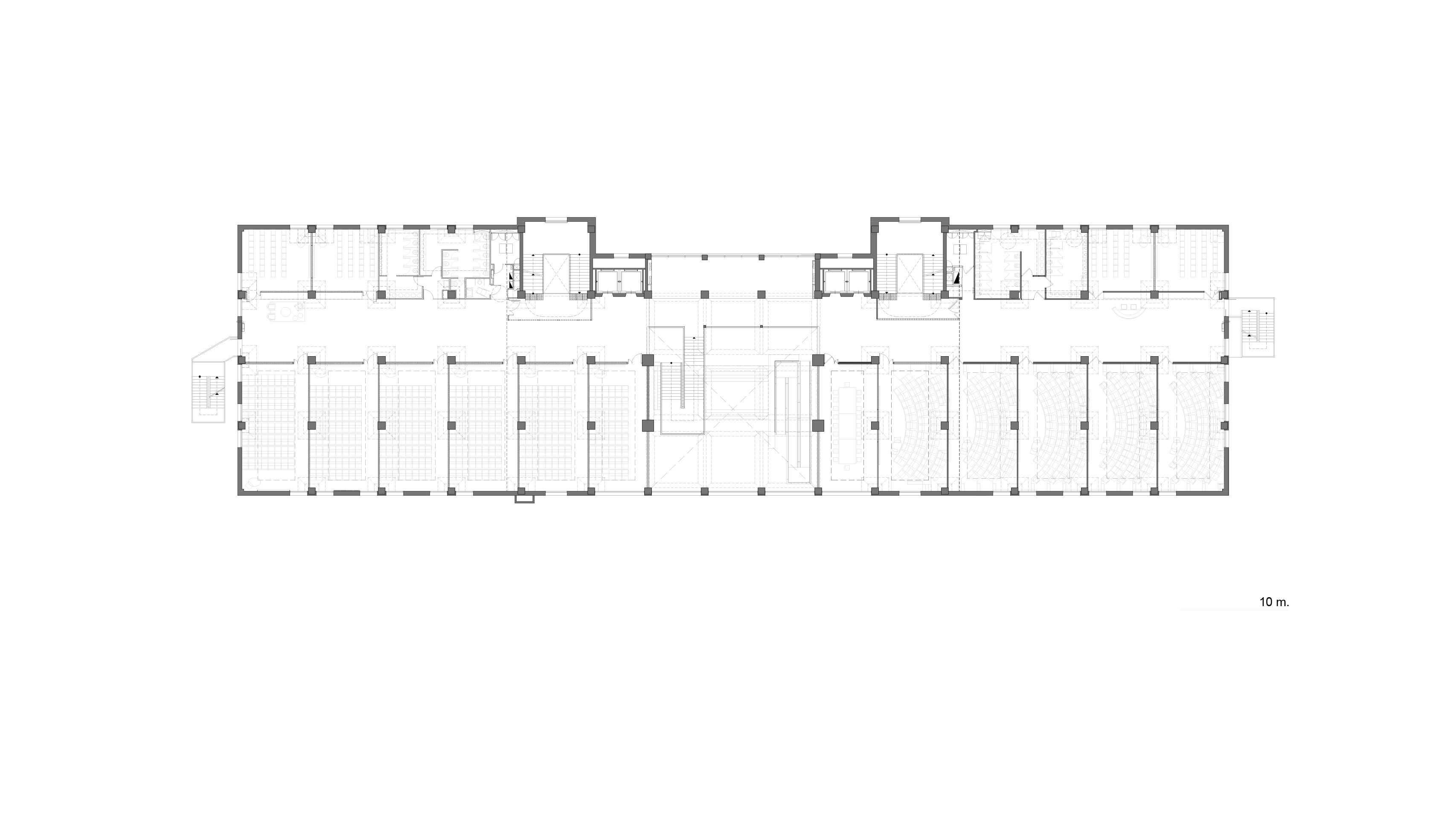
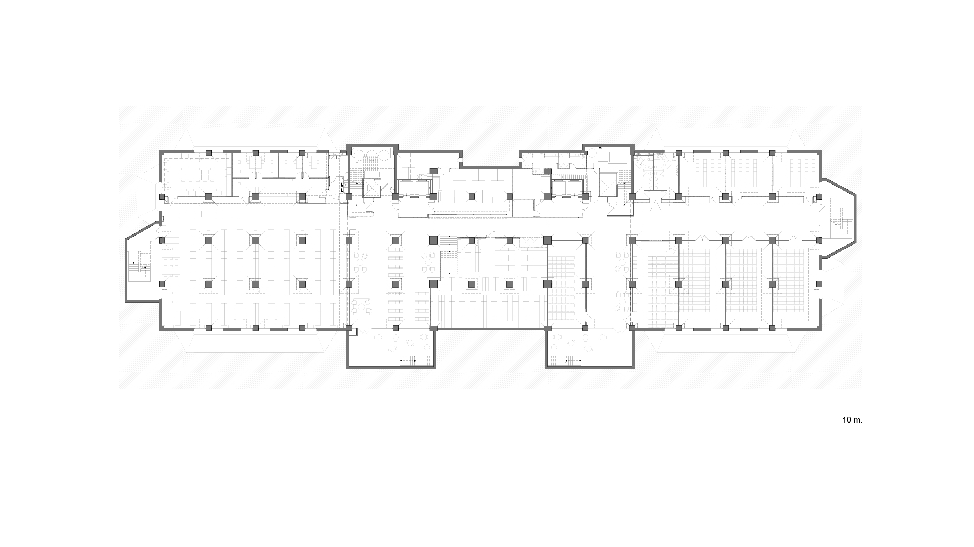
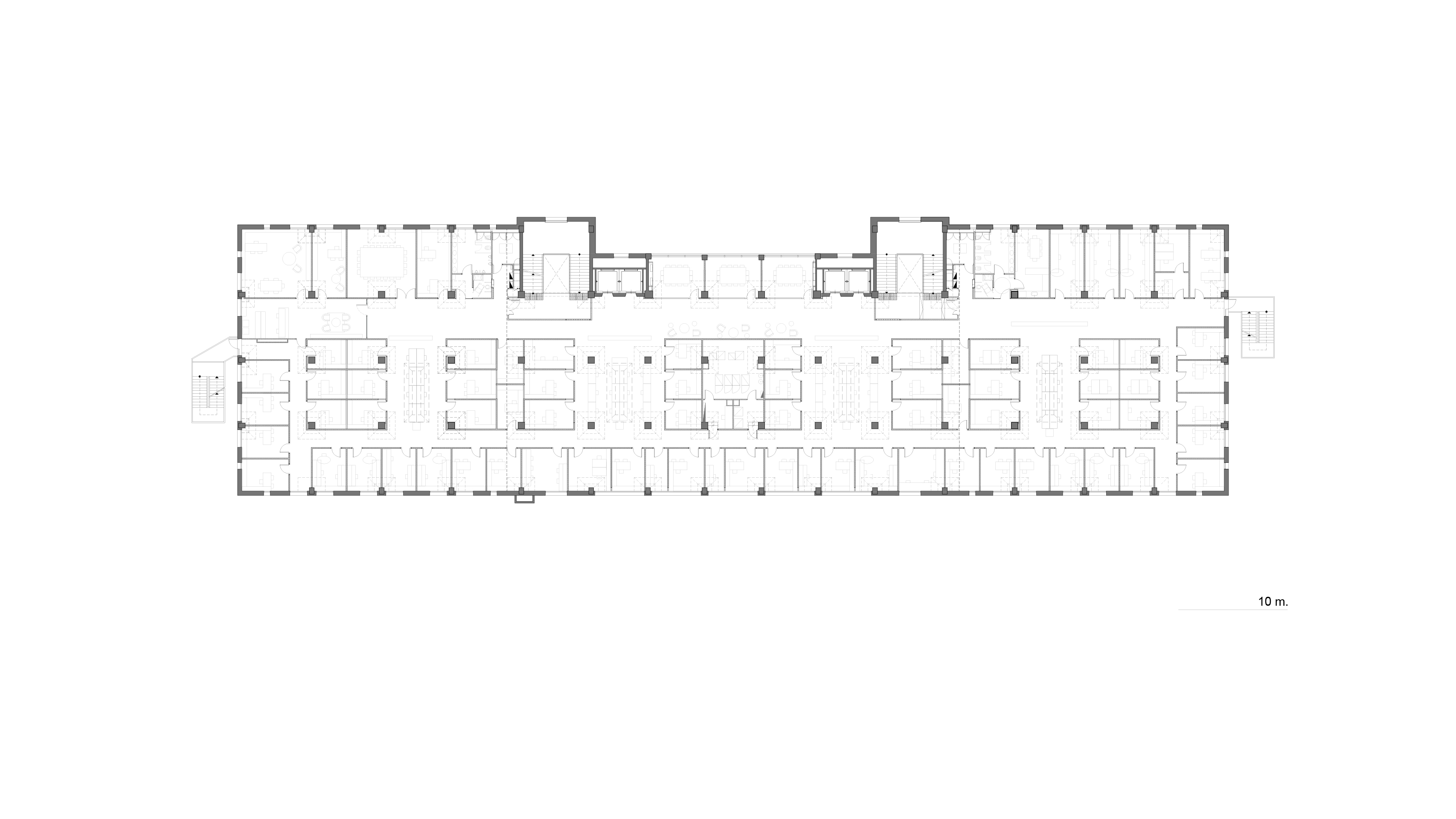
The larger spaces such as classrooms, dining room, library and workshops that can be accommodated in the deeper floorplans are located on the lower floors. The possibility of incorporating light through patios and skylights in the upper floors allowed the university to house the extensive program of academic and institutional offices required. In this way, internal offices and open spaces also benefit from natural light.

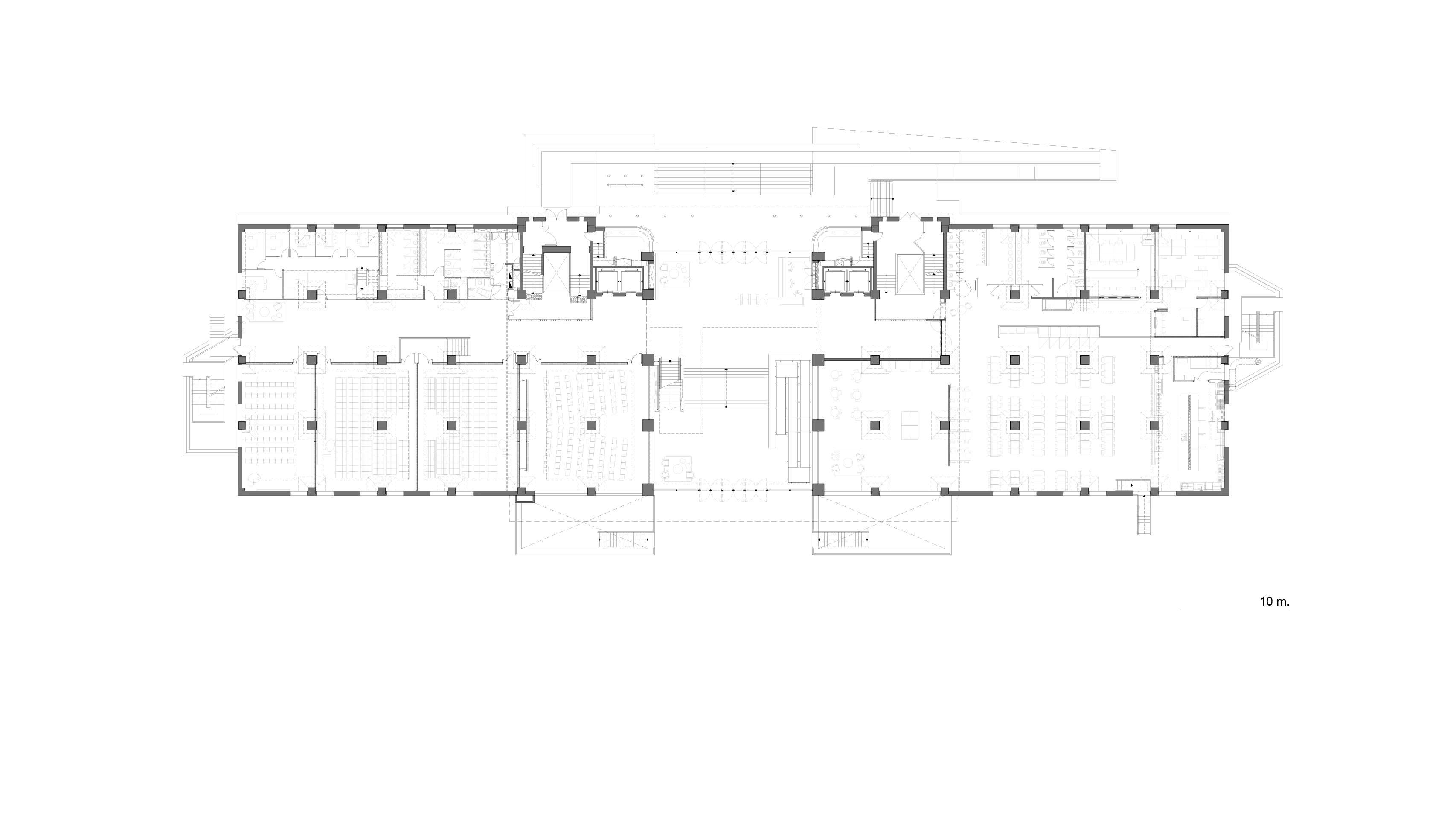
A new access to the campus was added through the Alcorta building, introducing an elevated esplanade that functionally unifies the ground floor through the new entrance hall. This hall becomes the reference space accessible both from the avenue through a large staircase and from the interior garden and structures the buildin'sinternal circulation system. It houses a sculptural staircase that crosses its double height, generating a fluid connection between the busy floors, with generous corridors allowing for informal meetings that promote exchanges between students.

The 4th floor houses a restaurant, offices and classrooms, and a large accessible green roof covering the entire extension allows the University to gain interesting exterior spaces and enjoy the open views towards the river and the city.

Universidad Torcuato Di Tella

Project
Universidad Torcuato Di Tella
Program

Rénovation et transformation d'un bâtiment existant pour accueillir des surfaces administratives et des locaux d'enseignement.

status
Built
location
Argentina, Ciudad de Buenos Aires
year
2011 - 2018
Client
Universidad Torcuato Di Tella
Floor area
20000 m2
Authors
RDR arquitectos
Award
III International Biennial of Argentine Architecture. Landscape and City: Distinguished. Torcuato Di Tella University, Buenos Aires
National Endowment for the Arts: Architecture Award. Second Prize: Sede Alcorta, Univ. Torcuato Di Tella, Buenos Aires
Award for the best action on Built Heritage 2014 for the Universidad Torcuato Di Tella.
XVII SCA CPAU Award. Best work in the country. Selected: Stage 3 - Alcorta Headquarters - Univ. Torcuato Di Tella. Buenos Aires
Collaborators
Ignacio Dahl Rocha, Bruno Emmer, Facundo Morando, Nicole Michel, Rodrigo Muro, Martín Rosello, Jorgelina Tortoricci, Ovidio Lagos, Nicolás Adrián, Inés Loviseck, Gerardo Pietrobelli, Ignacio Bóscolo, Martina Portugal, Guillermo Aporsegui, Maria Santarelli.
Structural
engineer
Ing. José Zaldua
Sanitary
engineer
ITISSA SA
Electrical
engineer
Ritec SA
Acoustical
consultant
Gustavo Basso / WSDG
Others
consultants
Termomecánica Frisia SA
Artist
Juan José Cambre
Photo
credits
Gustavo Sosa Pinilla / Javier Agustín Rojas
Universidad Torcuato Di Tella

Universidad Torcuato Di Tella

2011 - 2018 · Argentina, Ciudad de Buenos Aires · Public » Education

Renovation and transformation of an existing building into teaching and administrative facilities.

Until 2009 the Universidad Torcuato Di Tella was developing its activities in two separate buildings. With the aim of regrouping the students, teachers, and administrative staff in a single location on the Alcorta campus. The master plan carried out by RDR arquitectos proposed the development of works in stages. The first with the phased renovation and extension of the building on Av. Alcorta and then a second building on calle Sáenz Valiente completed the building capacity of the site.
+ read more
Project
Universidad Torcuato Di Tella
status
Built
location
Argentina, Ciudad de Buenos Aires
year
2011 - 2018
Client
Universidad Torcuato Di Tella
Floor area
20000 m2
+ view credits