Quartier Erlenmatt

Quartier Erlenmatt

Project
Quartier Erlenmatt
Program

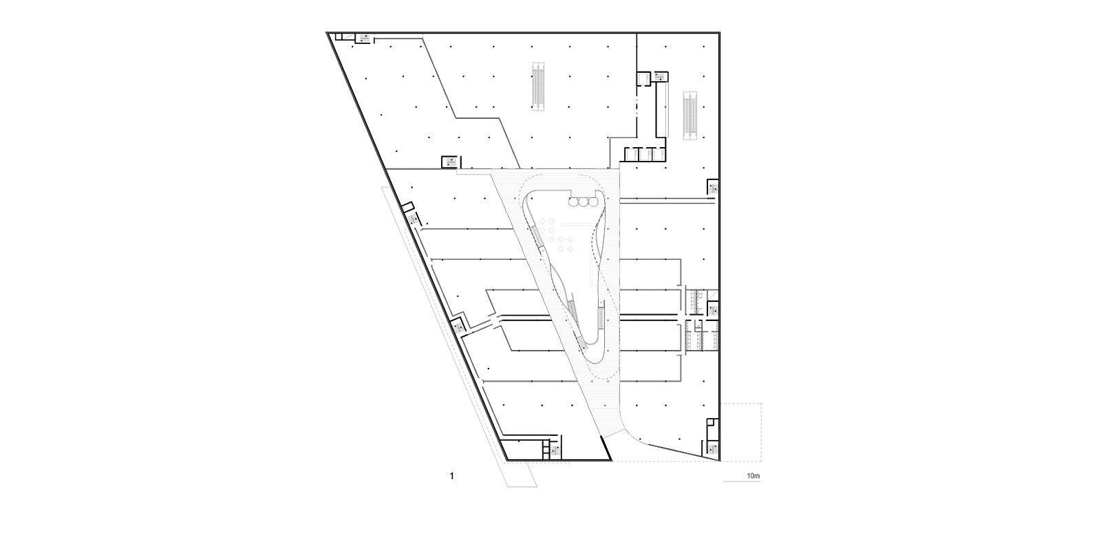
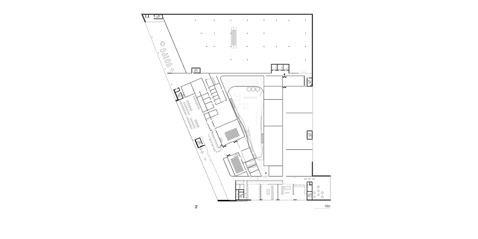
Project for a commercial center, with conference facilities, hotel, public spaces, and parking

status
Unbuilt
location
Suisse, Basel
year
2008 - 2008
Client
Multi Development Germany GMBH
Floor area
25000 m2
Authors
RDR Architectes
Collaborators
Bruno Emmer, Ignacio Dahl Rocha, Jacques Richter, Kenneth Ross, Martin Ioelster, Marco Turin, Nicolás Adrien
Structural
engineer
IngPhi SA
Facade
consultant
Emmer Pfenninger Partner AG
Artist
Catherine Bolle
Quartier Erlenmatt

Quartier Erlenmatt

2008 - 2008 · Suisse, Basel · Public » Retail

Project
Quartier Erlenmatt
status
Unbuilt
location
Suisse, Basel
year
2008 - 2008
Client
Multi Development Germany GMBH
Floor area
25000 m2
+ view credits