Quartier des Uttins

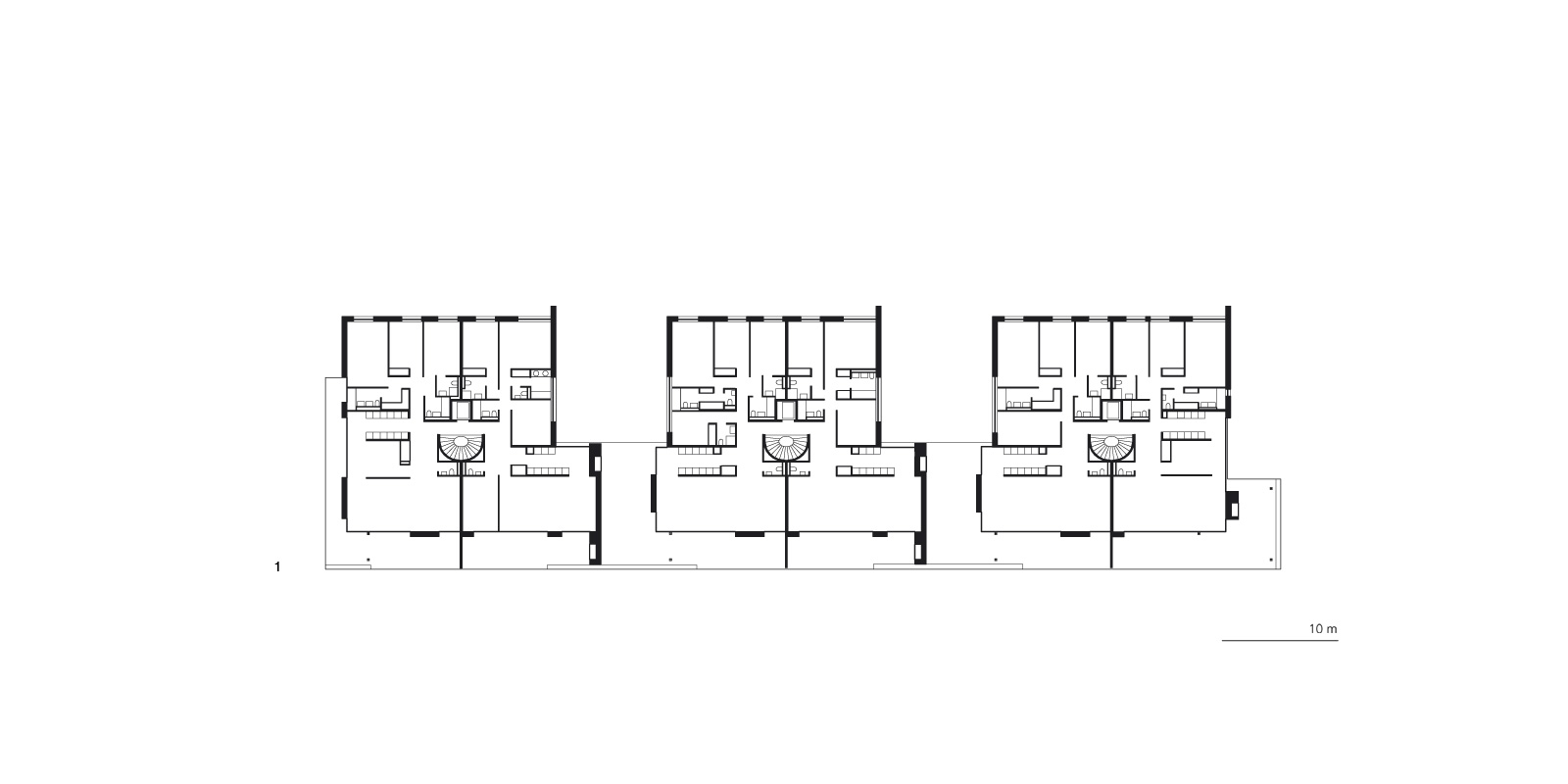
This project consists of a series of buildings, essentially a new neighbourhood, near the old centre of the small town of Rolle situated on the shores of Lake Geneva between the two major urban centres of Geneva and Lausanne. At walking distance from both the centre of the medieval town and the lake, “Les Uttins” consists of three commercial and administrative buildings and four apartment buildings. Presented here is the first apartment complex—“The Oaks.” This building houses 28 apartments with double orientation, located in a luxurious park and offering views onto the lake. The shape of the building is the result of the combination of a series of long horizontal planes forming terraces and balconies facing the park with three compact volumes containing the apartments. The building thus appears through a double typology. From the road, the three volumes stand out and suggest a medium-scale housing typology, whilst from the park, the building presents itself as a more unified whole—the continuity of the terraces is evocative of a bar building—blending into the landscape. This composition is laid onto a lower ground floor housing the access halls to each block, as well as corresponding parking spaces and cellars. This level runs below the housing blocks like a continuous foundation slate, pierced only by two little patios inserted between the volumes, allowing for natural light to illuminate the entrance halls and parking spaces. The two entrances to the complex are located at this lower level, at both ends of the building. The lateral positioning of the entries permitted the creation of private gardens for all apartments on the upper ground level.

Quartier des Uttins

Project
Quartier des Uttins
Program

4 residential buildings: Les Uttins D, 25 apartments; Les Uttins E, 18 apartments; Les Uttins F, 28 apartments; Les Uttins G, 37 apartments

status
Built
location
Suisse, Rolle
year
2000 - 2007
Client
SI Les Uttins sur Léman
Floor area
20400 m2
Authors
RDR architectes
Collaborators
Jacques Richter, Ignacio Dahl Rocha, Christian Leibbrandt, Bruno Emmer, Bernard Emonet, Antoine Barc, Christian Gonin, Pouska Haessig, Pierre Jacquier, Miroslav Jandescek, Alain Jaquenod, Martin Mouzo, Barbara Moyano Gacitúa, Hector Nunez, Michel Paganin, Fabrice Roulin, Nathalie Saegesser, Philippe Schmittler, Manuela Toscan, Philippe Vauthey
Structural
engineer
Urner & Associés SA
Electrical
engineer
Tecnoconsult SA
Interior
design
RDR design SA
Landscape
architect
Jean-Jacques Borgeaud
Others
consultants
Géomètre: Bureau d'Etudes Belotti Daniel
Quartier des Uttins

Quartier des Uttins

2000 - 2007 · Suisse, Rolle · Housing » Grouped

This project consists of a series of buildings, essentially a new neighbourhood, near the old centre of the small town of Rolle situated on the shores of Lake Geneva between the two major urban centres of Geneva and Lausanne. At walking distance from both the centre of the medieval town and the lake, “Les Uttins” consists of three commercial and administrative buildings and four apartment buildings. Presented here is the first apartment complex—“The Oaks.” This building houses 28 apartments with double orientation, located in a luxurious park and offering views onto the lake. The shape of the building is the result of the combination of a series of long horizontal planes forming terraces and balconies facing the park with three compact volumes containing the apartments.
+ read more
Project
Quartier des Uttins
status
Built
location
Suisse, Rolle
year
2000 - 2007
Client
SI Les Uttins sur Léman
Floor area
20400 m2
+ view credits