Banco Ciudad Headquarters

Este concurso público se centró en la elaboración del Proyecto y la Construcción de un edificio de oficinas para la nueva Sede Corporativa para Banco Ciudad. El impacto más importante de la propuesta se concentra en 2 temáticas relacionadas: la conformación del frente urbano del parque, instalando un gran edificio institucional icónico, y la consecuencia de la intervención que es la densificación del barrio llevando allí un gran flujo de personas que dinamiza la zona. El proyecto propone concentrar la totalidad del programa de oficinas en un volumen único, compacto y de perímetro libre.  De esto resulta, entre otras ventajas, una óptima relación entre la superficie de espacios iluminados naturalmente y la superficie de fachadas o, dicho de otra manera, una ecuación ideal entre confort y costos, tanto de construcción del edificio como de su explotación y mantenimiento.

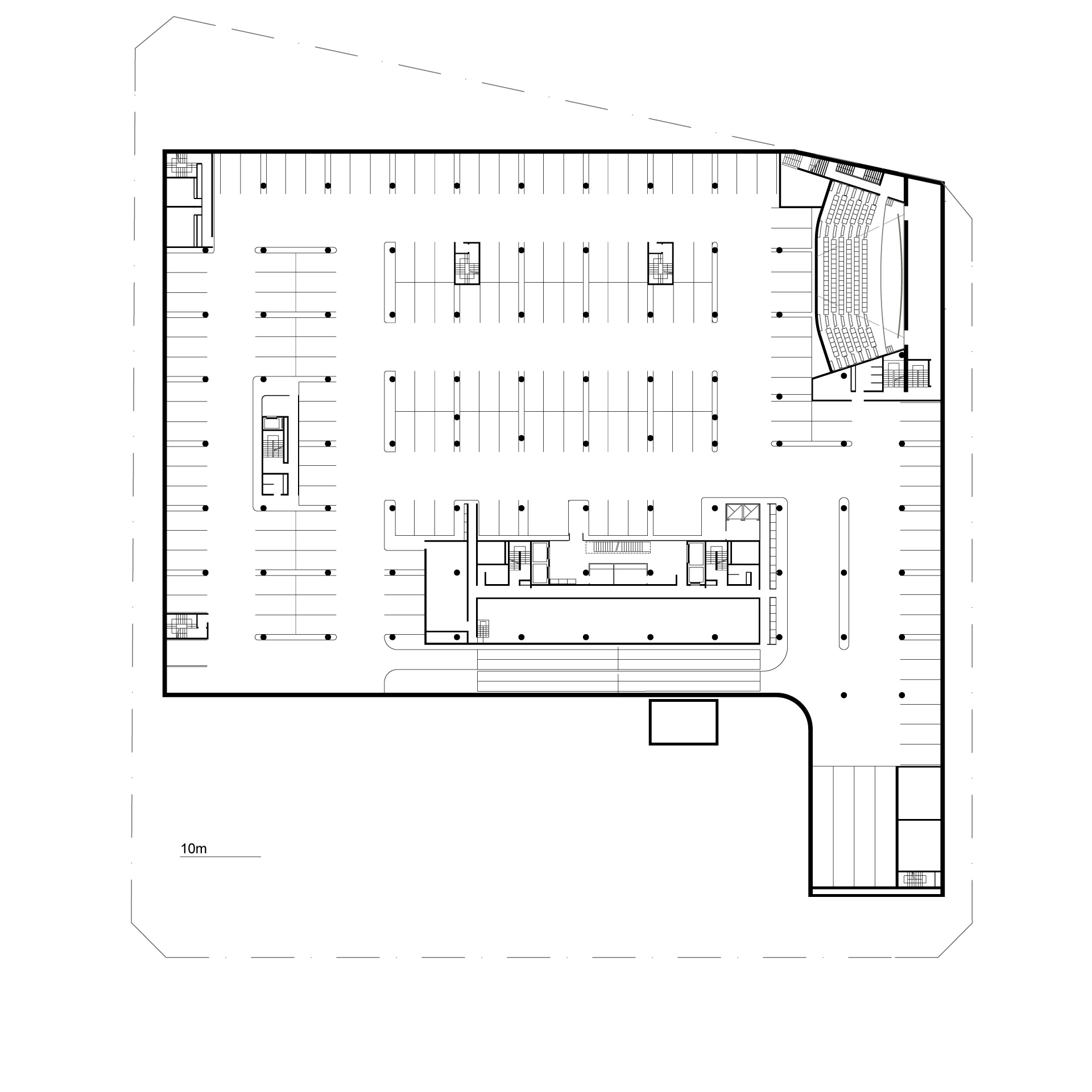
El volumen ocupa el centro de manzana reposando sobre un zócalo que resuelve espacialmente la pendiente del sitio y alberga las funciones anexas con sus diferentes accesos, como así también, la futura ampliación del edificio.

Hacia el norte, el proyecto define su identidad con determinación a través de la sensualidad de su fachada curva y la presencia vegetal de su jardín. Ambos se relacionan intensamente con el parque atrayéndolo hacia el interior de la parcela. La curva tiene además la ventaja de aumentar el desarrollo de la fachada norte permitiendo distribuir a lo largo de ella la mayoría de los puestos de trabajo gozando del privilegio de la presencia del parque.

Las plantas de oficinas se conciben para lograr un máximo de libertad y flexibilidad tanto a nivel de la planificación como del uso de los espacios de trabajo.
Además de la mencionada zona de oficinas abiertas que aloja la mayoría de los puestos de trabajo con vistas al parque, la planta tipo propone, a lo largo de sus tres fachadas rectas, sectores, ideales para oficinas privadas, oficinas de grupo o salas de reuniones.

Banco Ciudad Headquarters

Project
Banco Ciudad Headquarters
status
Competition
location
Argentina, Ciudad de Buenos Aires
year
2010
Client
Banco Ciudad de Buenos Aires
Authors
RDR arquitectos
Collaborators
Ignacio Dahl Rocha, Bruno Emmer, Gerardo Pietrobelli, Facundo Morando, Martin Roselló, Esteban Sciarrotta, Jorgelina Tortorici, Victoria Lynch, Nicolas Fernandez Sanz, Pablo Alves de Lima
Structural
engineer
José Norberto Galay
Sanitary
engineer
Estudio Labonia & Asoc
Electrical
engineer
Estudio Grunberg
Acoustical
consultant
Estudio Basso-Quintana
Landscape
architect
Grupo Landscape
Banco Ciudad Headquarters

Banco Ciudad Headquarters

2010 · Argentina, Ciudad de Buenos Aires · Administrative

Este concurso público se centró en la elaboración del Proyecto y la Construcción de un edificio de oficinas para la nueva Sede Corporativa para Banco Ciudad. El impacto más importante de la propuesta se concentra en 2 temáticas relacionadas: la conformación del frente urbano del parque, instalando un gran edificio institucional icónico, y la consecuencia de la intervención que es la densificación del barrio llevando allí un gran flujo de personas que dinamiza la zona. El proyecto propone concentrar la totalidad del programa de oficinas en un volumen único, compacto y de perímetro libre.  De esto resulta, entre otras ventajas, una óptima relación entre la superficie de espacios iluminados naturalmente y la superficie de fachadas o, dicho de otra manera, una ecuación ideal entre confort y costos, tanto de construcción del edificio como de su explotación y mantenimiento.
+ read more
Project
Banco Ciudad Headquarters
status
Competition
location
Argentina, Ciudad de Buenos Aires
year
2010
Client
Banco Ciudad de Buenos Aires
+ view credits